Donnybrook Close to Boat Ramp & Caboolture nearby DUPLEX
Leased
A/5 Fletcher Street, Donnybrook
2
1
1
No
Profile
Brand New Duplex only 6 months old
This lovely 2 bedroom home Duplex with Air conditioned living and main bedroom,
Neat as a Pin with quality stainless steel appliances, stone benches complete with air conditioning, to the living and main bedroom and all the little extra finishes keeping your home comfortable and modern, easy care tiled floors and carpet to the bedrooms
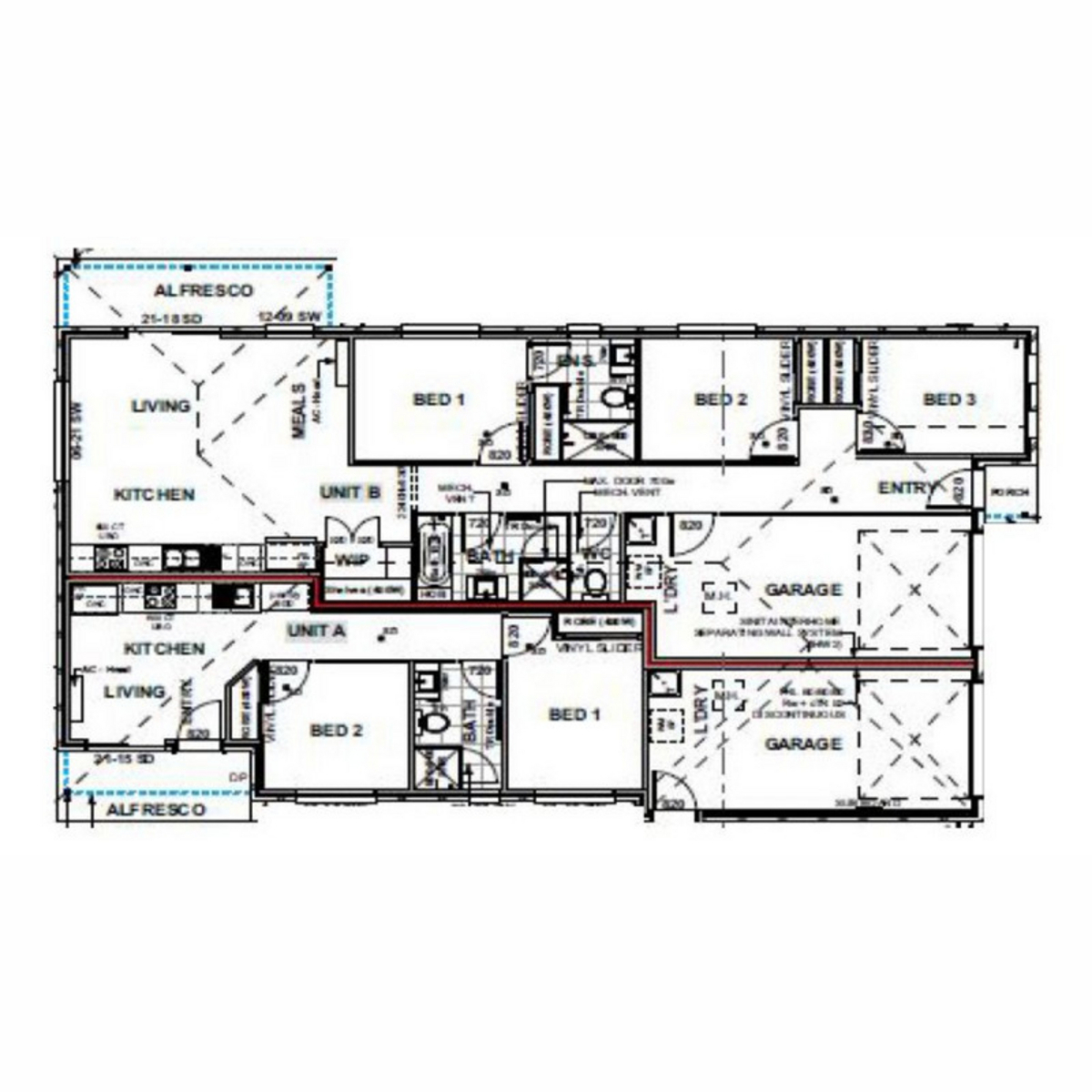
Please see floor plans
The duplex offers spacious bedrooms, a modern bathroom, internal laundry, a stylish kitchen with modern appliances including a dishwasher, a fenced low maintenance yard, and a single lock-up garage. All bedrooms have built-in robes. water charges apply
please see floor plan
NBN
These homes are new constructions and have not previously been connected to NBN. Please contact NBN or your preferred internet provider to discuss potential time frames for connection as there may be lengthy delays. This is a tenant responsibility.
Inspections will be arranged shortly if you are interested in inspecting please email your interest so that we can contact you to make arrangements
Call Linda on 0407157950 or email rentals@progressiverealty.com.au
#To apply straight away, apply from our website at www.progressiverealty.com.au #
PLEASE REGISTER FOR INSPECTIONS
How to book & inspect this property:
Arranging an inspection is easy. If you are on our website, simply click 'Book An Inspection', enter your details and confirm your booking by selecting your preferred date and time.
Alternatively, on realestate.com.au select 'Request an Inspection' and select your preferred date and time, along with your details.
Once confirmed, you'll automatically receive a confirmation email & SMS along with any updates that may occur for that property & inspection time.
Whilst every care is taken in the preparation of the information contained herein, Progressive Realty will not be held liable for any errors in information supplied. All interested parties should make there own enquires and not relay upon the advertisement to satisfy themselves in this respect.